Image 1 of 6 NEXT > < PREV
Art Institute
of Chicago

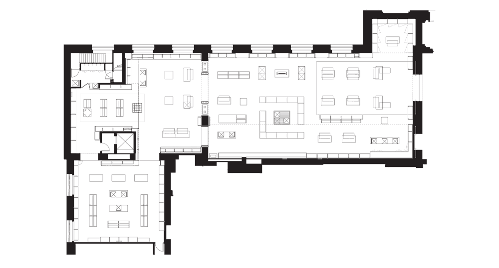
Main Museum Store

Project PDF

Expanding Space

Challenge

The main existing museum store had not been remodeled in almost 15 years, and needed substantial updating. The renovation of this 6,000-square-foot sales area was scheduled to coincide with the grand opening of The Modern Wing.

SOLUTION

We recommended opening up the space, to reduce the many broken sight lines produced by walls and bulky floor fixtures that were occupying the main aisle. By doing so, we created the perception that the store had been expanded, even though it still had the same square footage.

Part of the improvements included increasing the height and width of an opening between separate rooms to the books section, a structurally complex challenge in this classic 1890s World’s Columbian Exposition building. The transformation enhanced and restored ornamental plaster work, retained the high ceilings, and exposed more of the original windows, with views of Chicago’s legendary Michigan Avenue.

< To All Portfolio Projects